LAND 384 Landscape Architecture Design I:

Site Plan

Project Medium: Autocad, Sketchbook

Prof. Daniel Ortega

Fall 2020

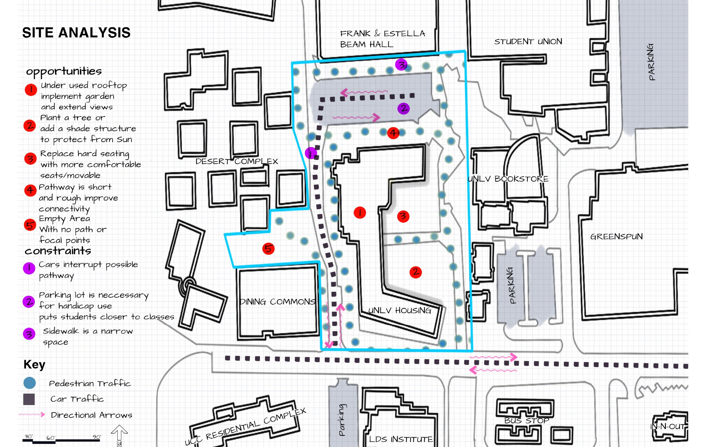
The concept for this project was to reimagine the existing University of Nevada Las Vegas student housing area through site inventory, site analysis, and applying Catherine Dee’s book Form and Fabric in Landscape Architecture. The site encompasses the dining commons all the way to the Student Union. When designing this concept I visited the student housing and analyzed the existing conditions taking note of the surrounding area. It was noticeable that the students did not use the outdoor space provided to them and it was mainly used as an area of traffic transitioning from one space to the next. There was nothing there that activated the space or allowed individuals to slow down and take the time to appreciate that side of the campus. I wanted to activate the space by creating more gathering areas by allocating more space to pedestrians and removing parking near the Frank & Estella Beam Hall building. Inspired by Maya Lin’s wave field I incorporated a field that would become a new hub for students close to the student union, dorms, and dining. I also sought other avenues for how to activate the space and studied landscape architect Hideo Sasaki’s work in New York. I incorporated a trellis that would create a visual appeal and shaded walkway from the sun as well as other amenities to grow and create a student community rather than a stop and go destination.

Previous
Previous

The Legend of Abbey

Next
Next

de[MONSTR]ative Architectures Apotheosis of the Unfamiliar