LAND 484 Landscape Architecture Design III:

Construction Documents

Group Project: Edward Oakes, Johnathan Metra, Claudio Garcia-Paiz

Project Medium: Autocad

Prof. Anna Peltier

Fall 2021

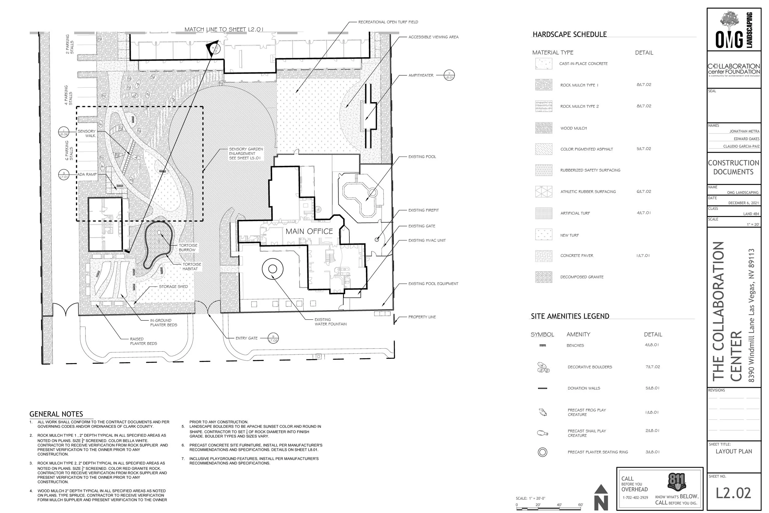
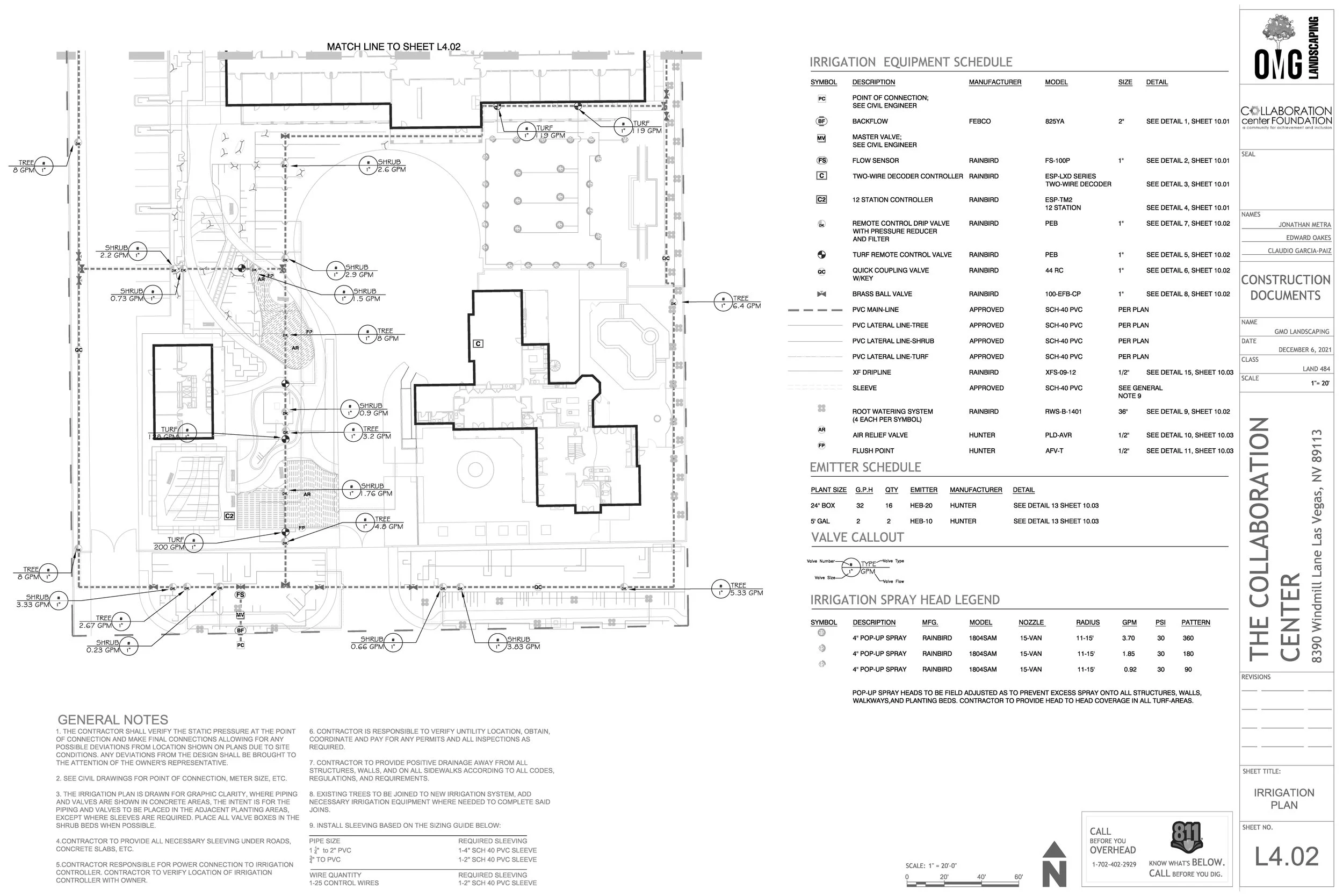
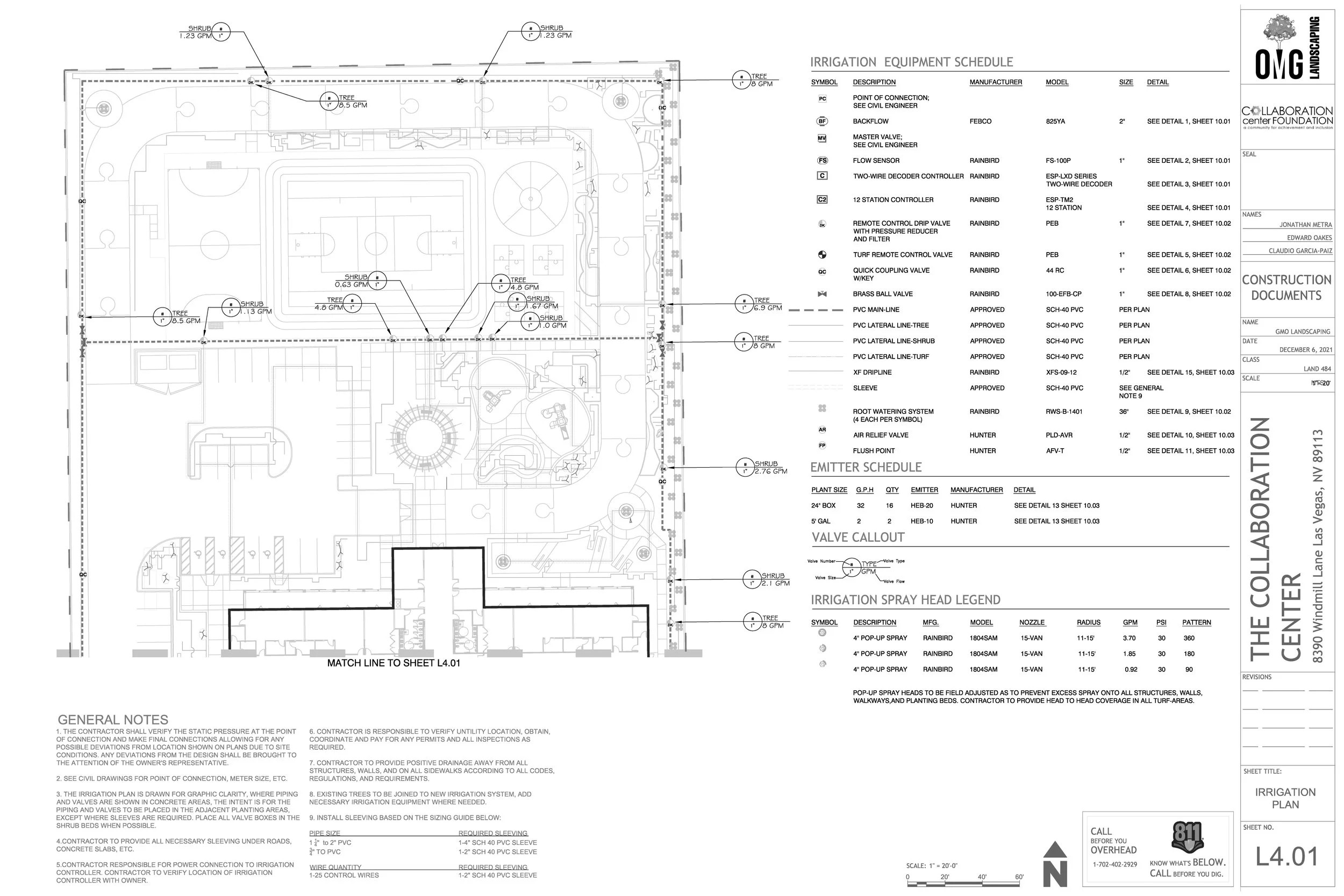
The Collaboration Center Foundation @Why Ranch is a facility that assist families and children with disabilities. This includes learning opportunities, recreational activities, therapy, and inclusivity. What was formerly a site that housed horses, theatrical equipment and housing was being converted to The Collaboration Center Foundation. In this fourth year studio project we were tasked with designing on this real project site and understanding the design process, following the book titled Landscape Architecture Documentation Standards by Design Workshop. In groups of three we went through the schematic design phase, design development phase, and construction documentation phase. Using Autocad we learned how to Xref, create line weights, title blocks, label, organize, and create custom blocks in order to finalize 24”x36” CD’s.

In the group project I focused on the irrigation portion of the project, irrigation details, and supplemental details such as the trellis, gate, sidewalk, tetherball court, etc. This was one of the most challenging projects I have ever worked on, I worked closely with the professor and studied irrigation systems intently. Not only were we tasked with learning design phases but were also tasked with learning State Laws and Code adhering to ADA. This project required immense amounts of research and teamwork in order to complete successfully.

Previous
Previous

de[MONSTR]ative Architectures Apotheosis of the Unfamiliar

Next
Next

Creative Work